F-8189 - Планы двухэтажного дома 10 на 14, площадью 230 м² с террасой, балконом и 2 спальнями
| Параметр проекта | Значение |
|---|---|
| Длина | 9.47 м |
| Ширина | 13.94 м |
| Этажность | 2 |
| Общая площадь | 221.22 м² |
| Площадь застройки | 132.08 м² |
| Кол-во спален | 2 |
| Количество ванных комнат | 2 |
| Стиль проекта | Современный |
| Материал стен | Газобетон |
| Тип кровли | Плоская кровля |
| Наличие цокольного этажа | Нет |
| Наличие гаража | Нет |
| Машиноместа | - |
| Чердак | Нет |
| Терраса | Да |
| Балкон | Да |
| Второй свет | - |
| Сауна | Нет |
Проект F-8189 представляет собой прекрасное решение для тех, кто мечтает о собственном доме с продуманной планировкой и всеми необходимыми удобствами. Двухэтажный дом площадью 230 м² станет не только уютным жилищем, но и гордостью его владельцев.
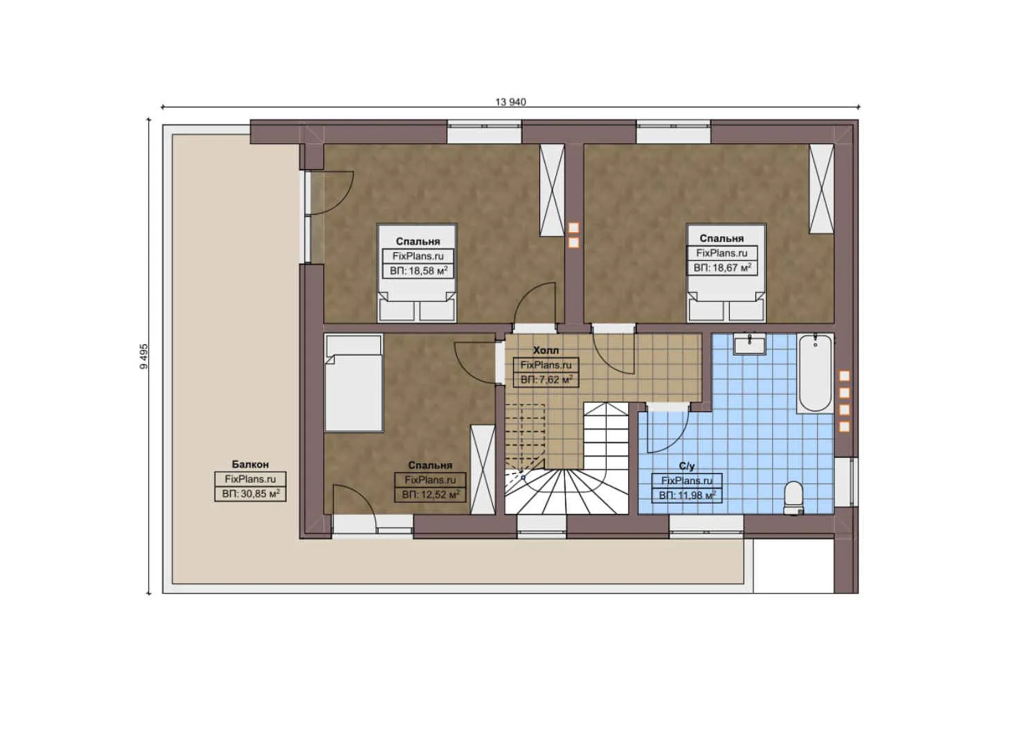
Просторная планировка
Дом имеет продуманную планировку, которая позволяет максимально эффективно использовать каждый квадратный метр пространства. Длина дома составляет 9,47 метра, а ширина — 13,94 метра. Такая конфигурация обеспечивает комфортное размещение всех необходимых помещений.
Два этажа позволяют создать функциональные и удобные жилые зоны. Отсутствие цокольного этажа упрощает строительство и эксплуатацию дома. Общая площадь здания составляет 221,22 м², что позволяет разместить все необходимые помещения для комфортной жизни.
Современные материалы и стиль
При строительстве дома использован современный материал — газобетон. Этот материал обеспечивает надёжность и долговечность конструкции, а также хорошую теплоизоляцию. Современный стиль проекта придаёт дому элегантный и стильный вид, который будет радовать владельцев долгие годы.
Наличие террасы и балкона расширяет возможности использования пространства вокруг дома. Терраса станет прекрасным местом для отдыха на свежем воздухе, а балкон позволит наслаждаться видами в любое время года.
Практичность и функциональность
В доме предусмотрены две спальни и две ванные комнаты, что обеспечивает комфортное проживание для семьи или гостей. Отсутствие гаража компенсируется возможностью организации парковочного места рядом с домом.
Плоская кровля является практичным решением, которое упрощает обслуживание крыши и позволяет использовать её как дополнительное пространство для отдыха или хранения вещей.