F-8558 - Планы двухэтажного дома 13 на 14, площадью 270 м² с террасой, балконом и 5 спальнями
| Параметр проекта | Значение |
|---|---|
| Длина | 13.99 м |
| Ширина | 12.38 м |
| Этажность | 2 |
| Общая площадь | 267.64 м² |
| Площадь застройки | 173.20 м² |
| Кол-во спален | 5 |
| Количество ванных комнат | 2 |
| Стиль проекта | Европейский |
| Материал стен | Газобетон |
| Тип кровли | Скатная кровля |
| Наличие цокольного этажа | Нет |
| Наличие гаража | Нет |
| Машиноместа | - |
| Чердак | Да |
| Терраса | Да |
| Балкон | Да |
| Второй свет | - |
| Сауна | Нет |
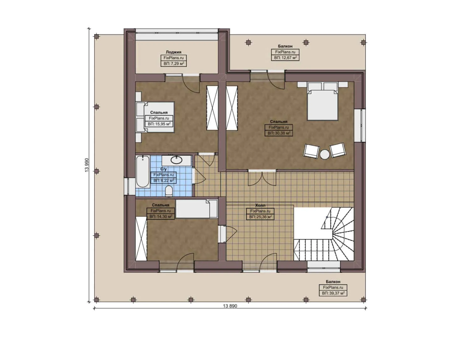
Двухэтажный дом F-8558 представляет собой проект с продуманной планировкой и функциональностью. Этот дом станет отличным выбором для тех, кто ценит комфорт и простор. Общая площадь в 270 м² позволит разместить все необходимое для комфортной жизни.
Просторная планировка
Проект отличается удобной планировкой: длина дома составляет 13,99 м, а ширина — 12,38 м. Это обеспечивает достаточное пространство для размещения всех комнат. В доме предусмотрено пять спален и две ванные комнаты, что идеально подходит для большой семьи или тех, кто любит принимать гостей.
Дополнительные удобства
На втором этаже дома есть чердак, который можно использовать по своему усмотрению — например, организовать дополнительное пространство для хранения вещей или обустроить мастерскую. Наличие террасы и балкона добавляет дому уюта и позволяет наслаждаться свежим воздухом в любое время года.
Материал стен и кровля
Дом построен из газобетона, что обеспечивает его надежность и долговечность. Скатная кровля защищает дом от осадков и придает ему завершенный внешний вид. Отсутствие цокольного этажа упрощает строительство и снижает стоимость проекта.
Преимущества проекта
Проект F-8558 предлагает множество преимуществ: просторную планировку, дополнительные удобства в виде террасы и балкона, надежные материалы и продуманную конструкцию. Этот проект станет отличным выбором для тех, кто ищет комфортное жилье с европейским стилем.