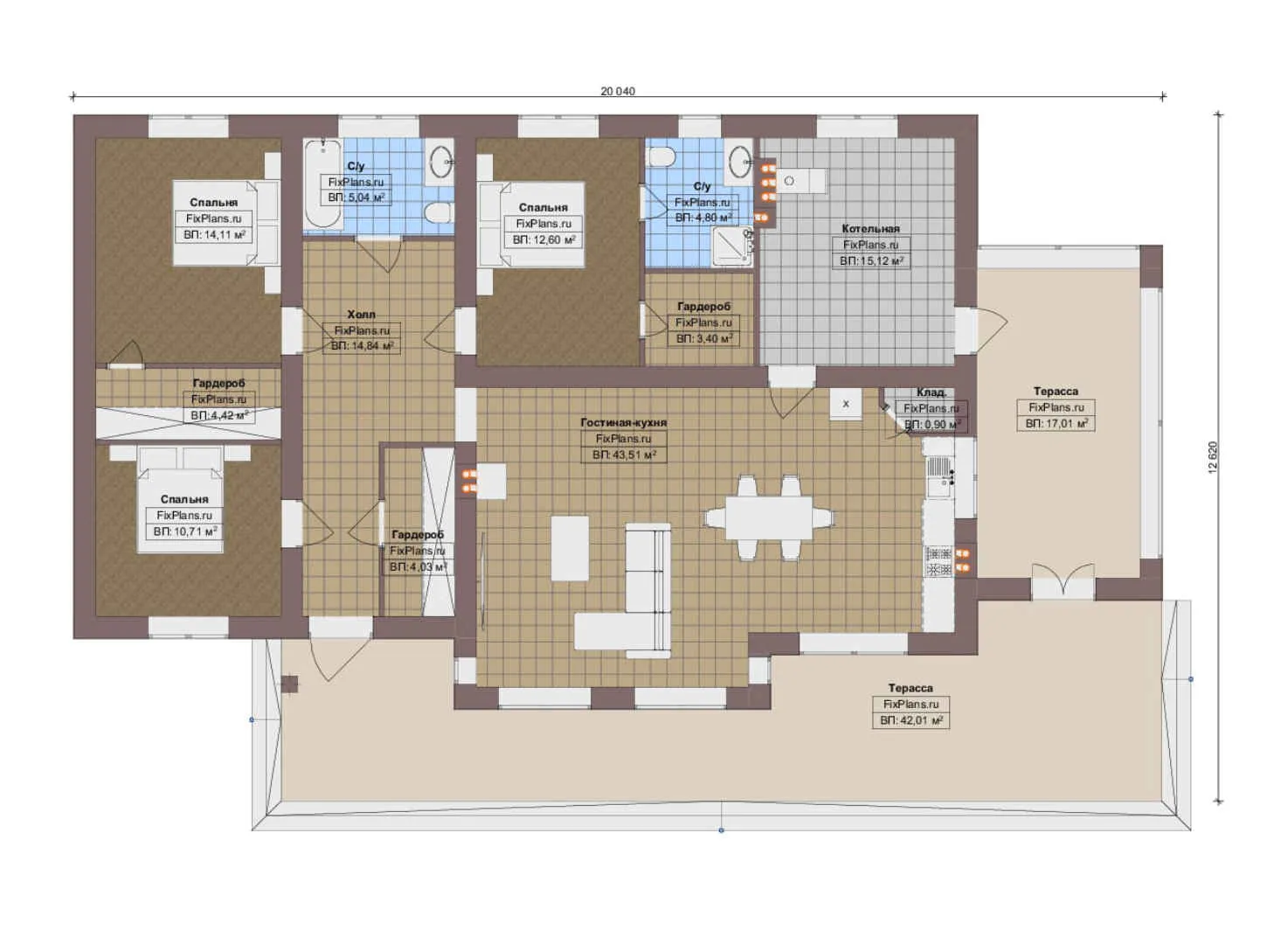
F-8585 - План одноэтажного дома 13 на 21, площадью 180 м² с террасой и 3 спальнями
| Параметр проекта | Значение |
|---|---|
| Длина | 20.38 м |
| Ширина | 12.68 м |
| Этажность | 1 |
| Общая площадь | 179.19 м² |
| Площадь застройки | 258.42 м² |
| Кол-во спален | 3 |
| Количество ванных комнат | 2 |
| Стиль проекта | Европейский |
| Материал стен | Газобетон |
| Тип кровли | Скатная кровля |
| Наличие цокольного этажа | Нет |
| Наличие гаража | Нет |
| Машиноместа | - |
| Чердак | Да |
| Терраса | Да |
| Балкон | Нет |
| Второй свет | - |
| Сауна | Нет |
Представляем вам проект одноэтажного дома площадью 180 м² — идеальный выбор для комфортной жизни большой семьи. Этот просторный дом станет вашим уютным гнёздышком, где каждый член семьи найдёт своё место. С тремя спальнями и двумя ванными комнатами вы сможете организовать пространство так, как удобно именно вам.
Европейский стиль и надёжность
Проект выполнен в европейском стиле, который отличается своей лаконичностью и функциональностью. Стены из газобетона обеспечивают отличную тепло- и звукоизоляцию, создавая комфортные условия для проживания круглый год. Скатная кровля придаёт дому завершённый вид и защищает от непогоды.
Преимущества проекта
Одноэтажный дом — это не только удобство в эксплуатации, но и безопасность для всех членов семьи. Отсутствие цокольного этажа упрощает обслуживание дома и делает его более доступным для детей и пожилых людей. Наличие террасы позволяет наслаждаться свежим воздухом и красивыми видами прямо из вашего дома.
Кроме того, наличие чердака даёт дополнительные возможности для хранения вещей или организации пространства под ваши нужды. Этот проект сочетает в себе практичность и эстетику, предлагая вам идеальное решение для вашего будущего жилья.
Не упустите возможность воплотить свои мечты о доме в реальность! Оставьте заявку на сайте и получите подробную информацию о проекте одноэтажного дома 13 на 21.