F-8729 - План одноэтажного дома 12 на 23, площадью 170 м² с террасой, гаражом на 1 машину и 3 спальнями
| Параметр проекта | Значение |
|---|---|
| Длина | 22.08 м |
| Ширина | 11.68 м |
| Этажность | 1 |
| Общая площадь | 164.80 м² |
| Площадь застройки | 257.89 м² |
| Кол-во спален | 3 |
| Количество ванных комнат | 2 |
| Стиль проекта | Европейский |
| Материал стен | Газобетон |
| Тип кровли | Скатная кровля |
| Наличие цокольного этажа | Нет |
| Наличие гаража | Да |
| Машиноместа | на 1 машину |
| Чердак | Да |
| Терраса | Да |
| Балкон | Нет |
| Второй свет | - |
| Сауна | Нет |
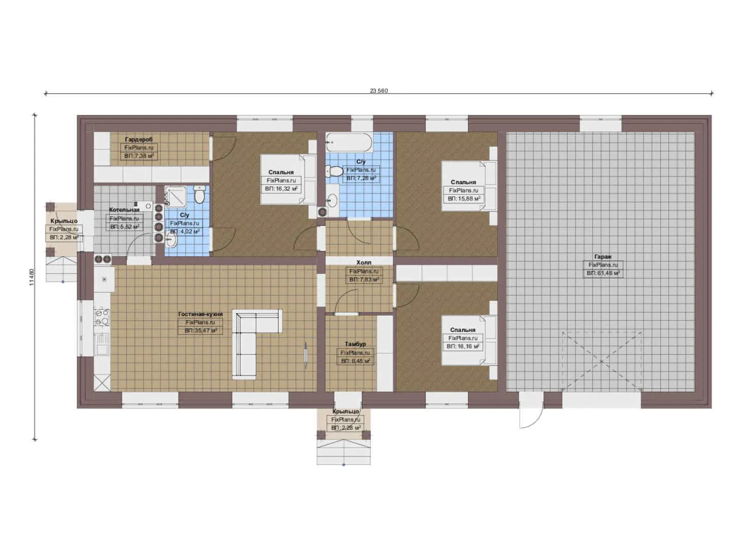
Проект одноэтажного дома F-8729 представляет собой идеальное решение для тех, кто мечтает о просторном и уютном жилье. Общая площадь дома составляет 170 м², что позволяет разместить все необходимые помещения и создать комфортное пространство для жизни. Длина дома — 22,08 м, ширина — 11,68 м, что обеспечивает удобную планировку и рациональное использование каждого квадратного метра.
Три спальни и две ванные комнаты
Дом рассчитан на три спальни, что делает его отличным выбором для семей с детьми или тех, кто предпочитает иметь личное пространство. Две ванные комнаты обеспечивают комфорт и удобство для всех жильцов. Наличие гаража на одно машиноместо добавляет практичности и безопасности хранения автомобиля.
Европейский стиль и качественные материалы
Стиль проекта — европейский, который отличается своей лаконичностью и функциональностью. Материал стен — газобетон, что обеспечивает надёжность и долговечность конструкции. Скатная кровля защищает дом от атмосферных осадков и придаёт ему завершённый вид. Наличие чердака расширяет возможности для хранения или организации дополнительного пространства.
Терраса для отдыха и развлечений
Одним из преимуществ проекта является наличие террасы, которая идеально подходит для отдыха на свежем воздухе, проведения семейных мероприятий или встреч с друзьями. Отсутствие балкона компенсируется просторной террасой, где можно обустроить зону барбекю, сад или место для отдыха. Этот проект станет отличным выбором для тех, кто ценит комфорт, функциональность и качество жизни.