F-9143 - Планы дома с мансардой 9 на 12, площадью 160 м² с террасой, балконом и 5 спальнями
| Параметр проекта | Значение |
|---|---|
| Длина | 12.00 м |
| Ширина | 8.60 м |
| Этажность | 1.5 |
| Общая площадь | 154.31 м² |
| Площадь застройки | 103.20 м² |
| Кол-во спален | 5 |
| Количество ванных комнат | 2 |
| Стиль проекта | Европейский |
| Материал стен | Газобетон |
| Тип кровли | Скатная кровля |
| Наличие цокольного этажа | Нет |
| Наличие гаража | Нет |
| Машиноместа | - |
| Чердак | Нет |
| Терраса | Да |
| Балкон | Да |
| Второй свет | - |
| Сауна | Нет |
Проект F-9143 представляет собой дом с мансардой размером 9 на 12 метров и общей площадью 160 м². Это отличное решение для тех, кто ищет комфортное жильё с продуманной планировкой.
Просторная планировка
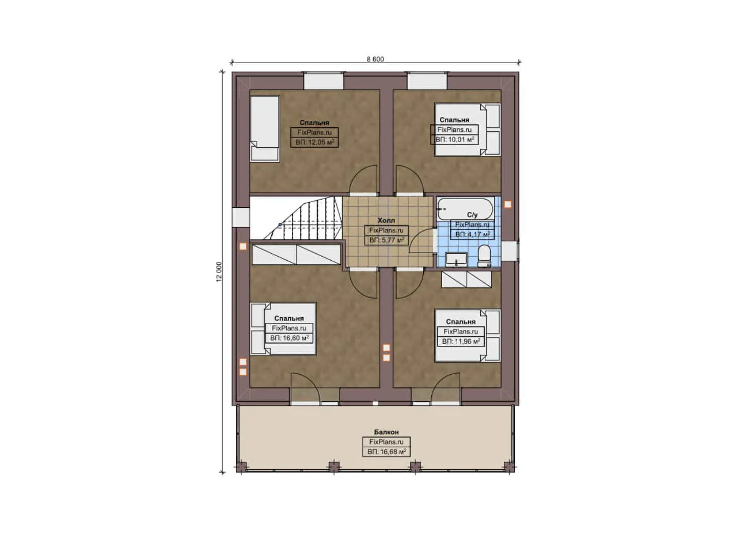
Дом имеет два этажа, включая мансарду, что позволяет эффективно использовать каждый квадратный метр пространства. В доме предусмотрено пять спален и две ванные комнаты, что делает его идеальным выбором для большой семьи или любителей простора. Общая площадь дома составляет 154,31 м², а площадь застройки — 103,20 м².
Материал стен и кровля
Стены дома выполнены из газобетона, что обеспечивает хорошую тепло- и звукоизоляцию. Скатная кровля придаёт дому стильный вид и защищает от непогоды. Отсутствие цокольного этажа упрощает строительство и обслуживание дома.
Дополнительные удобства
В проекте предусмотрены терраса и балкон, где можно проводить время на свежем воздухе. Это особенно актуально для любителей отдыха на природе. Терраса и балкон станут отличным местом для семейных посиделок или вечерних прогулок.
Европейский стиль
Стиль проекта — европейский, что придаёт дому современный вид и делает его гармоничным дополнением к любому ландшафту. Этот проект сочетает в себе комфорт и эстетику, создавая уютное пространство для жизни.
Не упустите возможность построить дом своей мечты! Оставьте заявку на сайте и начните воплощать свои идеи в реальность.