F-9296 - Планы двухэтажного дома 22 на 29, площадью 510 м² с террасой, баней, гаражом на 2 машины и 5 спальнями
| Параметр проекта | Значение |
|---|---|
| Длина | 28.11 м |
| Ширина | 21.20 м |
| Этажность | 2 |
| Общая площадь | 505.89 м² |
| Площадь застройки | 596.04 м² |
| Кол-во спален | 5 |
| Количество ванных комнат | 3 |
| Стиль проекта | Современный |
| Материал стен | Газобетон |
| Тип кровли | Плоская кровля |
| Наличие цокольного этажа | Нет |
| Наличие гаража | Да |
| Машиноместа | на 2 машины |
| Чердак | Нет |
| Терраса | Да |
| Балкон | Нет |
| Второй свет | - |
| Сауна | Да |
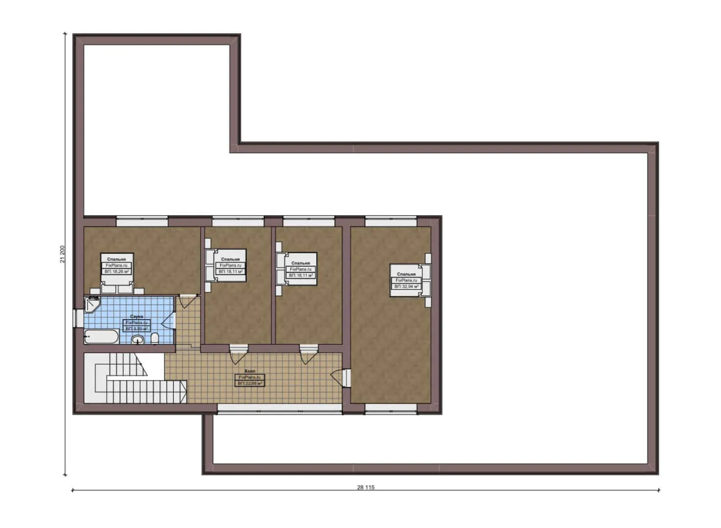
Проект двухэтажного дома площадью 510 м² представляет собой отличное решение для семей, мечтающих о просторном жилье. С длиной в 28,11 метра и шириной в 21,20 метра, этот дом обеспечит вам достаточно места для комфортной жизни. Два этажа позволят рационально использовать пространство, а общая площадь в 505,89 м² гарантирует, что каждый член семьи будет иметь своё личное пространство.
Функциональность и удобство
В доме предусмотрено пять спален и три ванные комнаты, что идеально подходит для большой семьи или тех, кто ценит комфорт и удобство. Наличие гаража на две машины обеспечит безопасное хранение вашего транспорта, а терраса станет прекрасным местом для отдыха и семейных посиделок на свежем воздухе. Отсутствие чердака компенсируется функциональностью других помещений, делая дом максимально удобным для жизни.
Современный стиль и надёжность
Современный стиль проекта подчеркнёт элегантность и современность вашего дома. Газобетонные стены обеспечивают отличную тепло- и звукоизоляцию, а плоская кровля гарантирует долговечность конструкции. Этот выбор материалов не только красив, но и практичен, что делает ваш дом надёжным и комфортным убежищем.
Дополнительные возможности
Помимо основных преимуществ, проект включает в себя наличие сауны, которая станет отличным дополнением к вашему отдыху. Отсутствие второго света позволяет сохранить пространство более функциональным, а отсутствие балкона компенсируется другими элементами дизайна. Этот проект — идеальное сочетание комфорта, стиля и практичности для тех, кто ценит качество жизни и хочет жить в доме своей мечты.