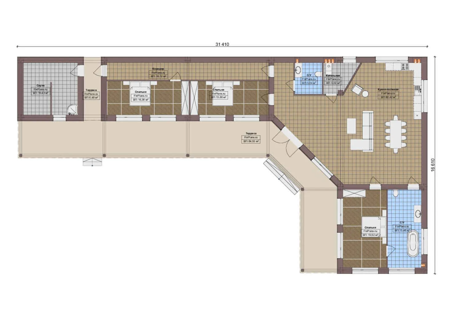
F-9485 - План одноэтажного дома 14 на 29, площадью 260 м² с террасой, баней и 3 спальнями
| Параметр проекта | Значение |
|---|---|
| Длина | 13.27 м |
| Ширина | 28.07 м |
| Этажность | 1 |
| Общая площадь | 254.50 м² |
| Площадь застройки | 372.49 м² |
| Кол-во спален | 3 |
| Количество ванных комнат | 3 |
| Стиль проекта | Современный |
| Материал стен | Газобетон |
| Тип кровли | Плоская кровля |
| Наличие цокольного этажа | Нет |
| Наличие гаража | Нет |
| Машиноместа | - |
| Чердак | Нет |
| Терраса | Да |
| Балкон | Нет |
| Второй свет | - |
| Сауна | Да |
Представляем вам проект одноэтажного дома площадью 260 м² с террасой, баней и тремя спальнями. Этот дом станет идеальным решением для тех, кто ценит простор и комфорт. Общая площадь дома составляет 254,5 м², а площадь застройки — 372,49 м². Такой размер позволяет реализовать все ваши идеи по обустройству жилья.
Современные материалы и стиль
Стены дома выполнены из газобетона, что обеспечивает надёжность и долговечность конструкции. Современный стиль проекта подчеркнёт ваш вкус и станет украшением вашего участка. Плоская кровля добавляет оригинальности и завершённости образу дома.
Многофункциональность и комфорт
В доме предусмотрены три спальни и три ванные комнаты, что делает его идеальным для семейного проживания. Наличие террасы позволяет организовать зону отдыха на свежем воздухе. Отсутствие второго света и чердака упрощает планировку и эксплуатацию помещений. Также в проекте предусмотрена сауна, которая станет отличным дополнением к вашему дому.
Отсутствие гаража не ограничивает функциональность
Хотя в проекте нет гаража, это не снижает его привлекательность. Вы можете легко разместить автомобиль на участке или воспользоваться другими вариантами хранения транспорта. Отсутствие машиномест компенсируется простором и функциональностью самого дома.