F-9755 - Планы дома с мансардой 13 на 13, площадью 200 м² с террасой, балконом и 3 спальнями
| Параметр проекта | Значение |
|---|---|
| Длина | 12.08 м |
| Ширина | 12.38 м |
| Этажность | 1.5 |
| Общая площадь | 193.70 м² |
| Площадь застройки | 149.55 м² |
| Кол-во спален | 3 |
| Количество ванных комнат | 2 |
| Стиль проекта | Европейский |
| Материал стен | Каркас |
| Тип кровли | Скатная кровля |
| Наличие цокольного этажа | Нет |
| Наличие гаража | Нет |
| Машиноместа | - |
| Чердак | Нет |
| Терраса | Да |
| Балкон | Да |
| Второй свет | - |
| Сауна | Нет |
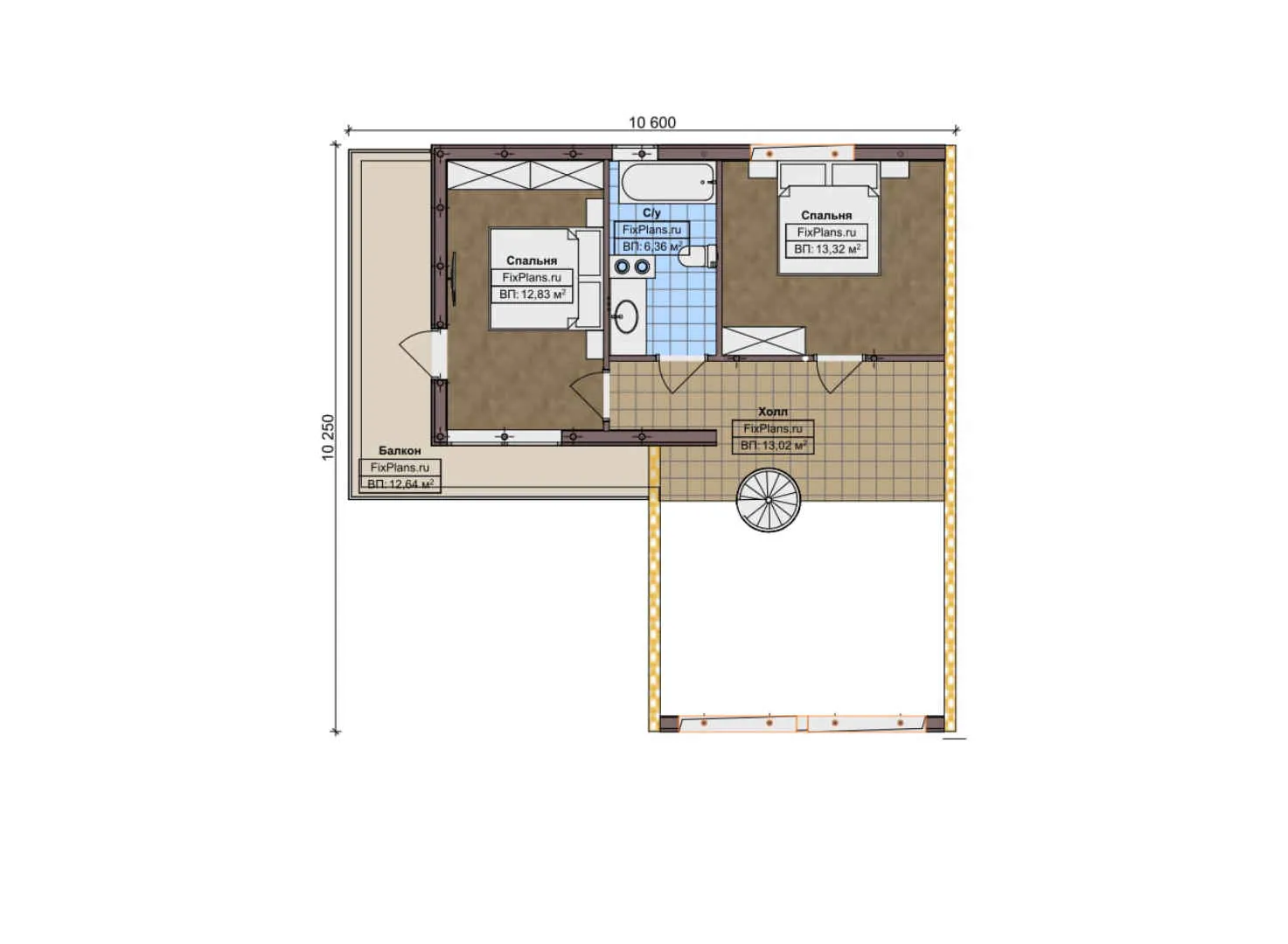
Проект F-9755 представляет собой дом с мансардой размером 13 на 13 метров и общей площадью 200 м². Этот проект идеально подойдёт тем, кто ищет уютное и функциональное жильё.
Просторный и функциональный
Длина дома составляет 12,08 м, а ширина — 12,38 м. Благодаря продуманной планировке, в доме предусмотрено три спальни и две ванные комнаты. Общая площадь проекта — 193,70 м², что позволяет разместить все необходимые помещения и создать комфортное пространство для жизни.
Европейский стиль и практичность
Стиль проекта — европейский, что придаёт ему особый шарм и элегантность. Материал стен — каркас, обеспечивающий прочность и долговечность конструкции. Скатная кровля добавляет завершённости образу дома. Отсутствие цокольного этажа упрощает строительство и обслуживание.
Дополнительные удобства
В проекте предусмотрены терраса и балкон, которые станут отличным местом для отдыха и развлечений на свежем воздухе. Наличие этих элементов делает дом ещё более привлекательным и функциональным.
Преимущества проекта F-9755
Проект F-9755 обладает рядом преимуществ, которые делают его идеальным выбором для строительства дома вашей мечты:
- Просторная планировка;
- Три спальни и две ванные комнаты;
- Европейский стиль;
- Практичные материалы стен;
- Дополнительные удобства в виде террасы и балкона.
Не упустите возможность воплотить свою мечту о доме с мансардой!