F-9953 - Планы двухэтажного дома 9 на 13, площадью 140 м² с террасой и 6 спальнями
| Параметр проекта | Значение |
|---|---|
| Длина | 8.32 м |
| Ширина | 12.99 м |
| Этажность | 2 |
| Общая площадь | 137.51 м² |
| Площадь застройки | 108.12 м² |
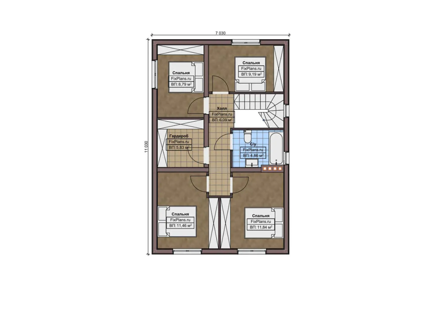
| Кол-во спален | 6 |
| Количество ванных комнат | 2 |
| Стиль проекта | Европейский |
| Материал стен | Газобетон |
| Тип кровли | Скатная кровля |
| Наличие цокольного этажа | Нет |
| Наличие гаража | Нет |
| Машиноместа | - |
| Чердак | Да |
| Терраса | Да |
| Балкон | Нет |
| Второй свет | - |
| Сауна | Нет |
Проект F-9953 представляет собой двухэтажный дом площадью 140 м² с террасой, который станет идеальным решением для большой семьи. Просторные комнаты и продуманная планировка обеспечивают комфортное проживание для всех членов семьи. Шесть спален и две ванные комнаты создают дополнительное удобство и позволяют каждому члену семьи иметь своё личное пространство.
Европейский стиль и надёжность
Дом выполнен в европейском стиле, что придаёт ему современный и элегантный вид. Газобетонные стены обеспечивают отличную тепло- и звукоизоляцию, а скатная кровля защищает от непогоды. Отсутствие цокольного этажа упрощает строительство и обслуживание дома.
Дополнительные возможности
Наличие террасы позволяет наслаждаться свежим воздухом и красивыми видами без необходимости выходить из дома. Чердак предоставляет дополнительные возможности для хранения вещей или создания дополнительного пространства. Отсутствие гаража компенсируется возможностью организации парковочных мест рядом с домом.
Преимущества проекта F-9953
Проект двухэтажного дома 9 на 13 обладает всеми необходимыми характеристиками для комфортного проживания большой семьи. Просторная планировка, европейский стиль, надёжные материалы и дополнительные возможности делают этот проект отличным выбором для тех, кто ценит комфорт и качество.