F-9980 - Планы двухэтажного дома 13 на 13, площадью 250 м² с гаражом на 1 машину и 5 спальнями
| Параметр проекта | Значение |
|---|---|
| Длина | 12.21 м |
| Ширина | 12.21 м |
| Этажность | 2 |
| Общая площадь | 249.17 м² |
| Площадь застройки | 149.08 м² |
| Кол-во спален | 5 |
| Количество ванных комнат | 5 |
| Стиль проекта | Европейский |
| Материал стен | Газобетон |
| Тип кровли | Скатная кровля |
| Наличие цокольного этажа | Нет |
| Наличие гаража | Да |
| Машиноместа | на 1 машину |
| Чердак | Да |
| Терраса | Нет |
| Балкон | Нет |
| Второй свет | - |
| Сауна | Нет |
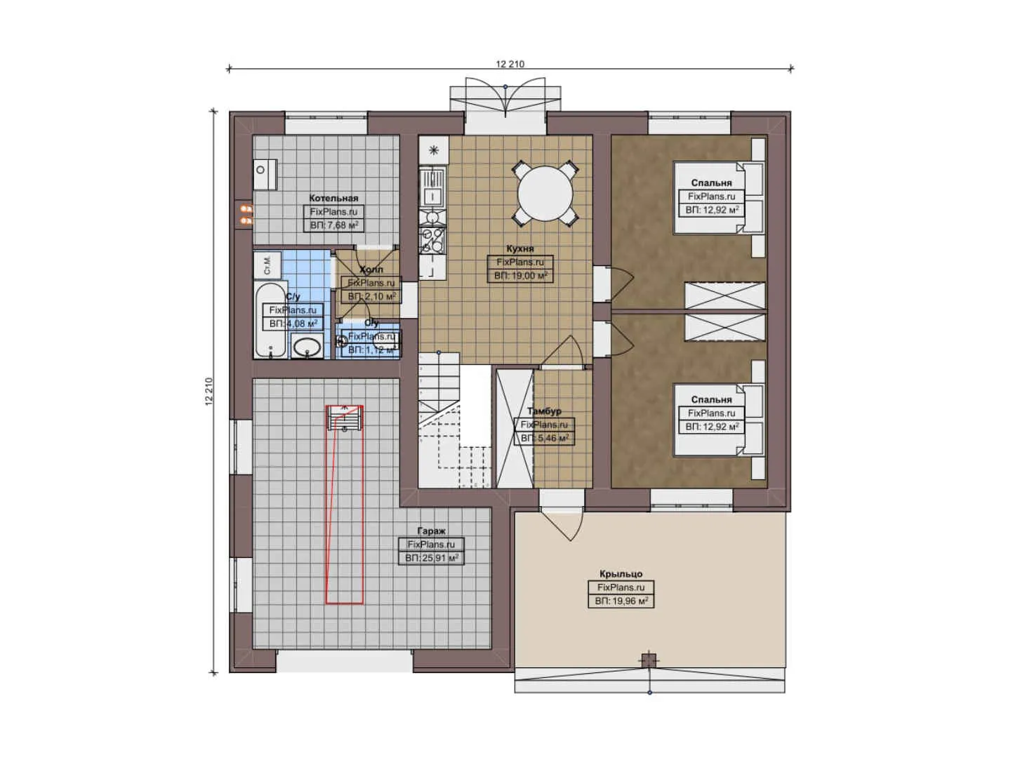
Представляем вам проект двухэтажного дома площадью 250 м² с удобной планировкой. Этот дом станет идеальным решением для тех, кто ценит комфорт и простор. Благодаря своим размерам, он позволит разместить все необходимые помещения и создать уютное пространство для жизни.
Пять спален и пять ванных комнат
В доме предусмотрено пять спален и пять ванных комнат, что обеспечит комфортное проживание всей семьи. Вы сможете организовать личное пространство для каждого члена семьи и гостей.
Европейский стиль и надёжные материалы
Проект выполнен в европейском стиле, который отличается своей лаконичностью и функциональностью. Стены дома изготовлены из газобетона — прочного и долговечного материала, обеспечивающего отличную тепло- и звукоизоляцию.
Гараж на одну машину
На участке предусмотрен гараж для одной машины, что позволит вам всегда иметь удобное место для парковки. Это особенно актуально в условиях современного города.
Чердак и продуманная планировка
В доме есть чердак, который можно использовать для хранения вещей или организации дополнительного пространства. Продуманная планировка позволяет эффективно использовать каждый квадратный метр площади.
Не упустите возможность воплотить свои мечты о загородной жизни в реальность. Оставьте заявку на сайте и получите подробную информацию о проекте.