F-2969 - Планы двухэтажного дома 12 на 16, площадью 220 м² с террасой, гаражом на 2 машины и 3 спальнями
| Параметр проекта | Значение |
|---|---|
| Длина | 11.49 м |
| Ширина | 15.93 м |
| Этажность | 2 |
| Общая площадь | 212.69 м² |
| Площадь застройки | 183.04 м² |
| Кол-во спален | 3 |
| Количество ванных комнат | 2 |
| Стиль проекта | Современный |
| Материал стен | Газобетон |
| Тип кровли | Плоская кровля |
| Наличие цокольного этажа | Нет |
| Наличие гаража | Да |
| Машиноместа | на 2 машины |
| Чердак | Нет |
| Терраса | Да |
| Балкон | Нет |
| Второй свет | - |
| Сауна | Нет |
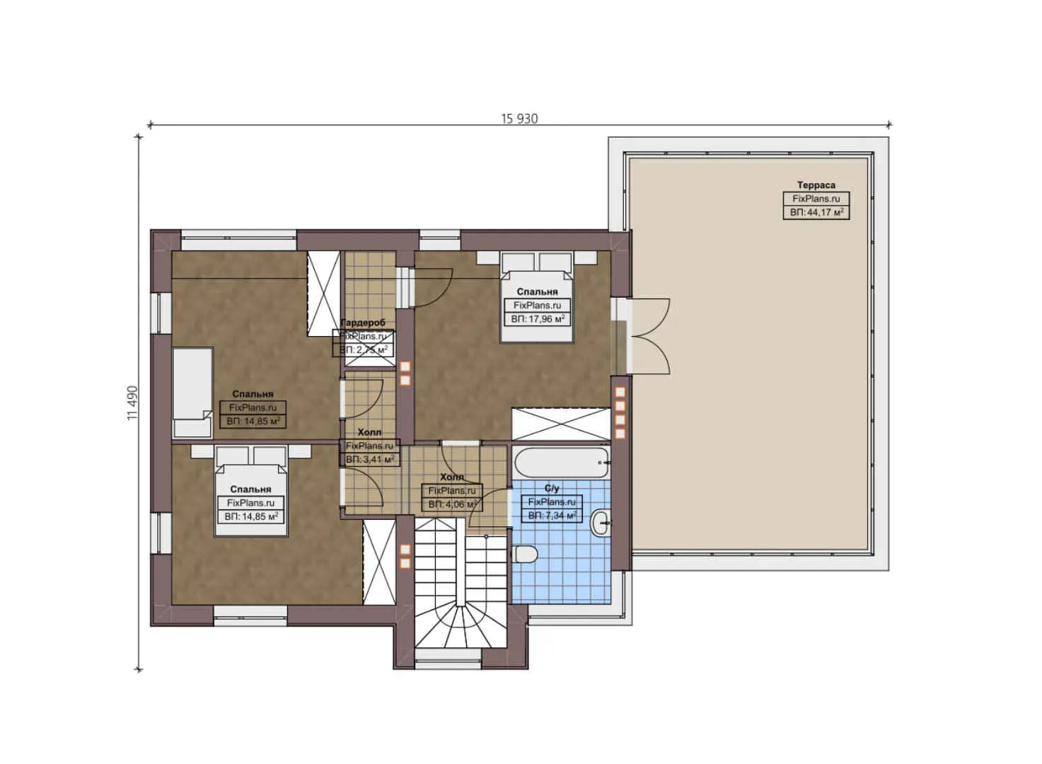
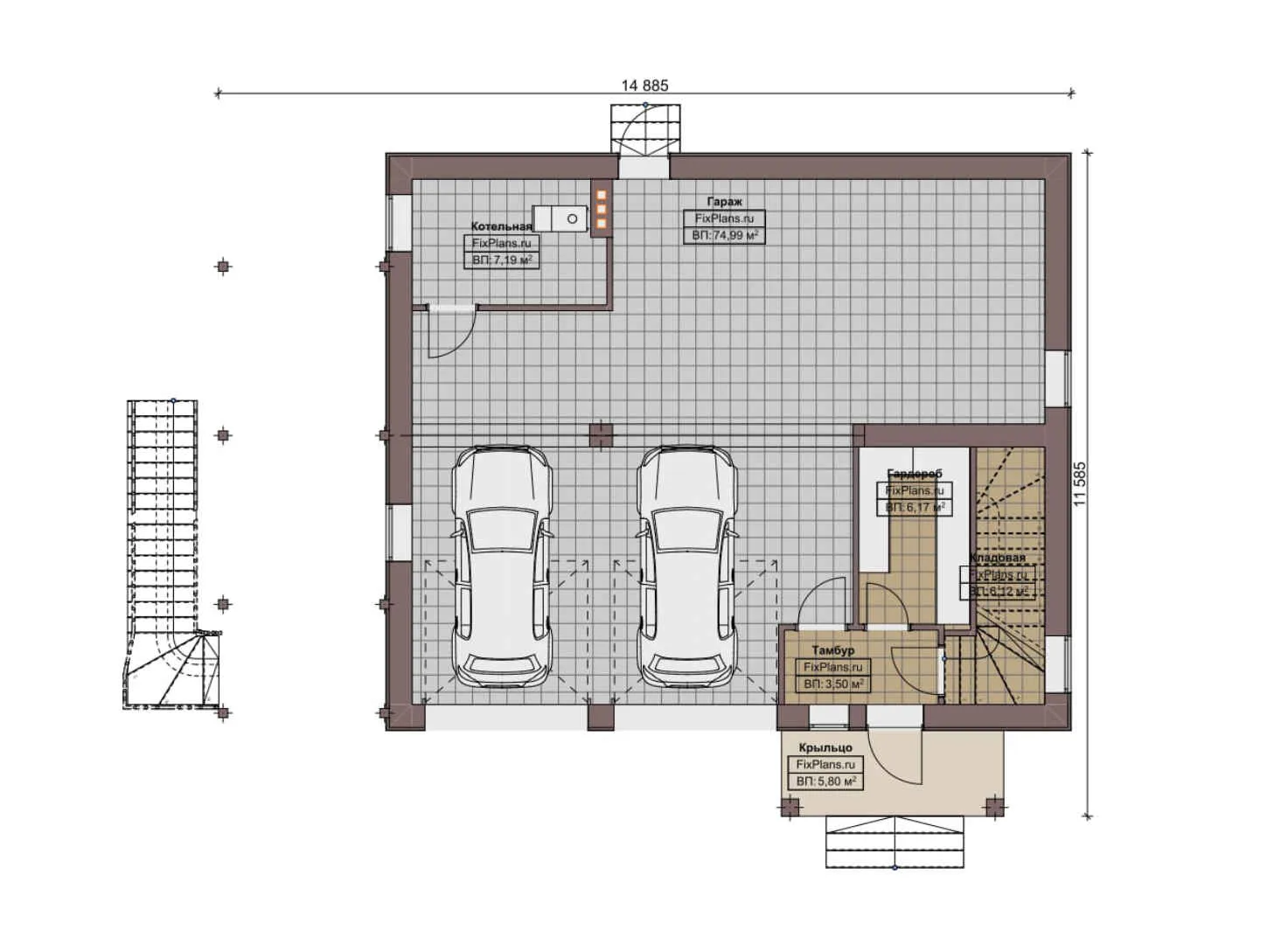
Проект двухэтажного дома площадью 220 м² предлагает достаточно места для комфортной жизни всей семьи. Длина здания составляет 11,49 м, а ширина — 15,93 м, что обеспечивает удобное планирование внутреннего пространства. Два этажа позволяют оптимально распределить функциональные зоны, создавая уютное и функциональное жилище.
Функциональность и практичность
Дом оснащён тремя спальнями и двумя ванными комнатами, что идеально подходит для семейного проживания. Наличие гаража на две машины обеспечивает надёжное хранение транспорта и дополнительную безопасность. Плоская кровля придаёт зданию современный вид и упрощает обслуживание крыши. Отсутствие чердака позволяет использовать пространство более рационально.
Современный стиль и удобство
Современный стиль проекта подчёркивает его актуальность и эстетическую привлекательность. Газобетонные стены обеспечивают хорошую теплоизоляцию, что способствует созданию комфортного микроклимата в доме. Терраса предоставляет дополнительное пространство для отдыха на свежем воздухе, а отсутствие балкона компенсируется функциональностью других элементов дома.
Практичность и продуманность
Отсутствие цокольного этажа упрощает строительство и обслуживание здания. Наличие террасы делает дом более привлекательным и удобным для жизни. Проект разработан с учётом современных требований к комфорту и безопасности, что гарантирует его актуальность на протяжении многих лет.
Не упустите возможность воплотить свои мечты о доме в реальность. Выберите проект двухэтажного дома 12 на 16 и создайте уютное гнёздышко для своей семьи.