F-7775 - Планы двухэтажного дома 12 на 15, площадью 220 м² с террасой, гаражом на 2 машины и 3 спальнями
| Параметр проекта | Значение |
|---|---|
| Длина | 14.88 м |
| Ширина | 11.59 м |
| Этажность | 2 |
| Общая площадь | 217.53 м² |
| Площадь застройки | 172.44 м² |
| Кол-во спален | 3 |
| Количество ванных комнат | 2 |
| Стиль проекта | Европейский |
| Материал стен | Газобетон |
| Тип кровли | Скатная кровля |
| Наличие цокольного этажа | Нет |
| Наличие гаража | Да |
| Машиноместа | на 2 машины |
| Чердак | Да |
| Терраса | Да |
| Балкон | Нет |
| Второй свет | - |
| Сауна | Нет |
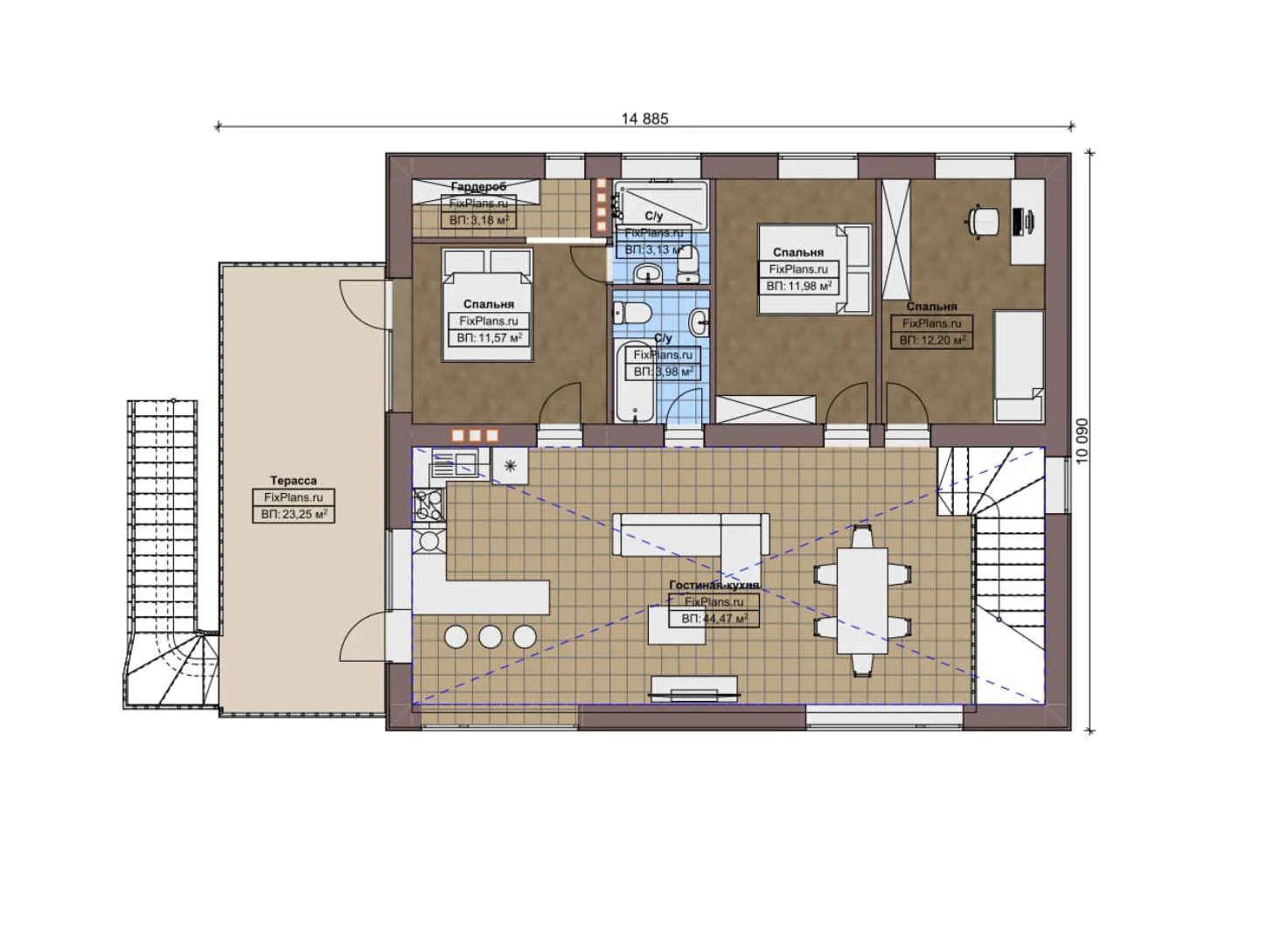
Проект F-7775 представляет собой двухэтажный дом площадью 220 м² с террасой, гаражом на две машины и тремя спальнями. Этот проект идеально подойдёт тем, кто ценит простор и комфорт. Европейский стиль дома придаст вашему жилищу особый шарм и элегантность.
Функциональность и практичность
Дом оснащён всем необходимым для комфортной жизни. Три спальни обеспечат комфортный отдых всей семьи, а две ванные комнаты гарантируют удобство использования пространства. Наличие гаража на две машины позволит вам всегда иметь место для вашего транспорта, а терраса станет отличным местом для отдыха и встреч с друзьями.
Прочные материалы и надёжная конструкция
Стены дома выполнены из газобетона, что обеспечивает высокую прочность и долговечность конструкции. Скатная кровля гарантирует защиту от атмосферных осадков и сохранение тепла внутри помещения. Отсутствие цокольного этажа упрощает процесс строительства и эксплуатации здания.
Удобство планировки
Планировка проекта продумана до мелочей. Наличие чердака и отсутствие балкона позволяют адаптировать пространство под индивидуальные потребности жильцов. Этот проект станет отличным выбором для тех, кто ценит функциональность и практичность в каждом элементе дома.
Не упустите возможность воплотить свою мечту о просторном и комфортном доме! Оставьте заявку на сайте и получите более подробную информацию о проекте F-7775.