F-6002 - Планы дома с мансардой 12 на 14, площадью 230 м² с баней и 4 спальнями
| Параметр проекта | Значение |
|---|---|
| Длина | 11.35 м |
| Ширина | 13.15 м |
| Этажность | 1.5 |
| Общая площадь | 227.07 м² |
| Площадь застройки | 149.25 м² |
| Кол-во спален | 4 |
| Количество ванных комнат | 2 |
| Стиль проекта | Европейский |
| Материал стен | Газобетон |
| Тип кровли | Скатная кровля |
| Наличие цокольного этажа | Нет |
| Наличие гаража | Нет |
| Машиноместа | - |
| Чердак | Нет |
| Терраса | Нет |
| Балкон | Нет |
| Второй свет | - |
| Сауна | Да |
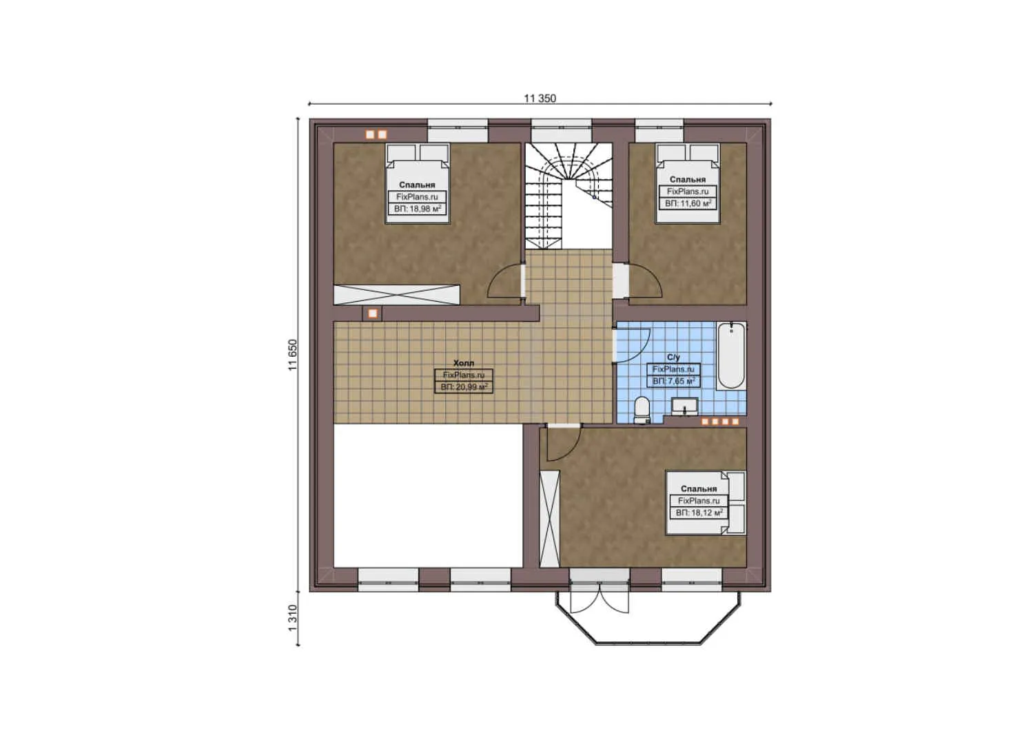
Проект F-6002 представляет собой дом площадью 230 м² с мансардой, который станет идеальным решением для вашей семьи. Этот проект отличается продуманной планировкой и функциональностью каждого квадратного метра пространства.
Просторная планировка
Длина дома составляет 11,35 м, а ширина — 13,15 м. Благодаря этим размерам вы сможете разместить все необходимые помещения и создать комфортное пространство для жизни. В доме предусмотрено четыре спальни, что обеспечит каждому члену семьи личное пространство. Общая площадь проекта составляет 227,07 м², включая мансарду.
Европейский стиль и практичность
Стиль проекта — европейский, который отличается своей лаконичностью и функциональностью. Стены дома выполнены из газобетона, что обеспечивает надёжность и долговечность конструкции. Скатная кровля придаёт дому современный вид и защищает от погодных условий. Отсутствие цокольного этажа позволяет оптимизировать пространство под нужды жильцов.
Дополнительные удобства
В проекте предусмотрена баня, которая станет отличным местом для отдыха и релаксации после рабочего дня. Наличие двух ванных комнат обеспечит комфорт всем членам семьи. Отсутствие террасы и балкона не уменьшает функциональность проекта, а подчёркивает его практичность.
Преимущества проекта F-6002
Проект дома с мансардой 12 на 14 предлагает множество преимуществ: просторную планировку, европейский стиль, надёжные материалы и дополнительные удобства в виде бани. Этот проект станет отличным выбором для тех, кто ценит комфорт, функциональность и качество жизни.