F-6074 - Планы дома с мансардой 12 на 14, площадью 240 м² с баней и 4 спальнями
| Параметр проекта | Значение |
|---|---|
| Длина | 11.35 м |
| Ширина | 13.15 м |
| Этажность | 1.5 |
| Общая площадь | 232.06 м² |
| Площадь застройки | 149.25 м² |
| Кол-во спален | 4 |
| Количество ванных комнат | 2 |
| Стиль проекта | Европейский |
| Материал стен | Газобетон |
| Тип кровли | Скатная кровля |
| Наличие цокольного этажа | Нет |
| Наличие гаража | Нет |
| Машиноместа | - |
| Чердак | Нет |
| Терраса | Нет |
| Балкон | Нет |
| Второй свет | - |
| Сауна | Да |
Проект F-6074 представляет собой дом с мансардой площадью 240 м², который станет отличным выбором для тех, кто ценит комфорт и практичность. Этот проект отличается продуманной планировкой и функциональностью каждого квадратного метра.
Просторная планировка
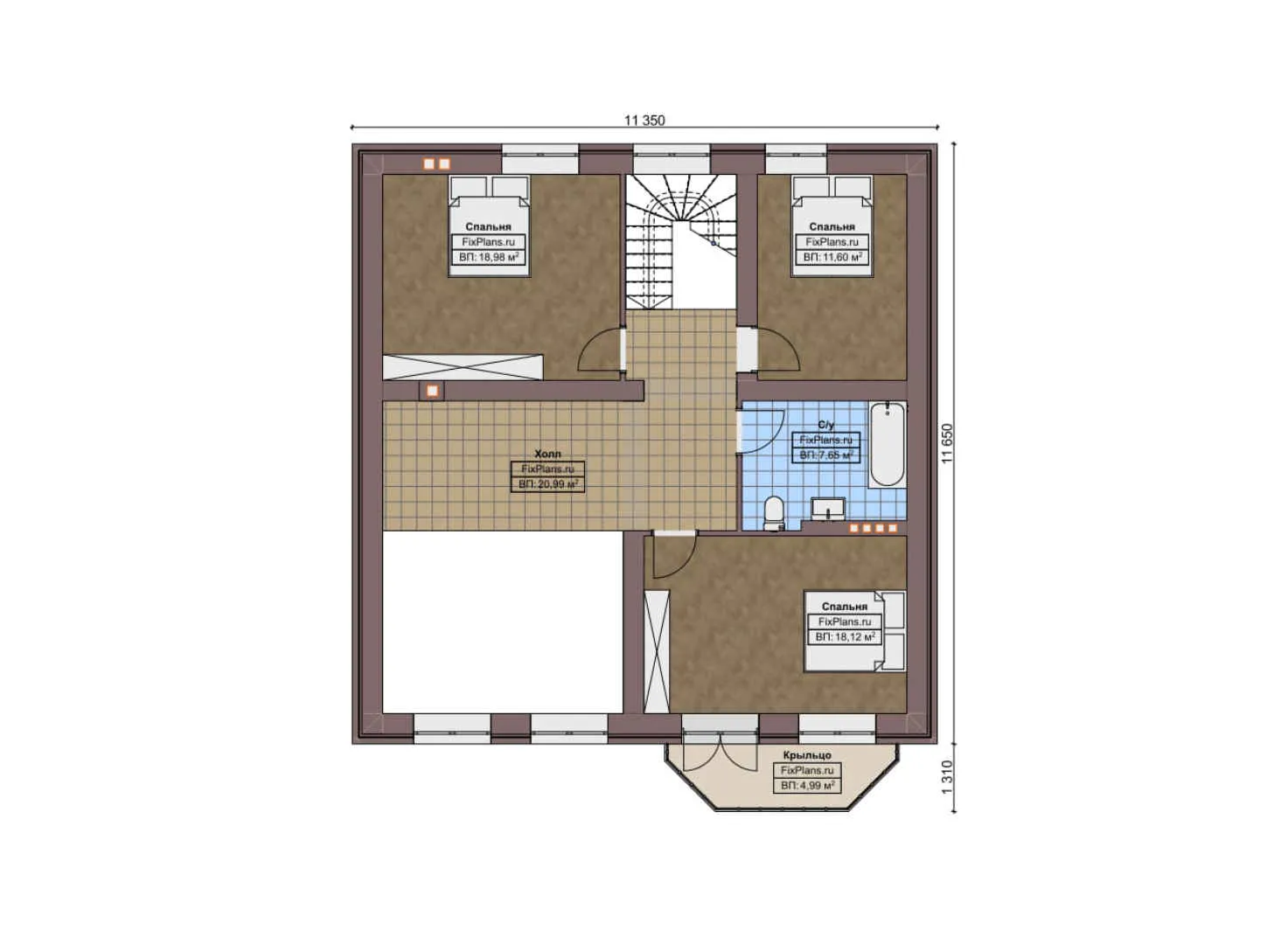
Дом имеет длину 11,35 м и ширину 13,15 м, что обеспечивает достаточно места для комфортной жизни. Общая площадь составляет 232,06 м², а площадь застройки — 149,25 м². Благодаря продуманной планировке в доме предусмотрено четыре спальни и две ванные комнаты, что делает его идеальным решением для семей с детьми или тех, кто часто принимает гостей.
Европейский стиль и комфорт
Стиль проекта — европейский, который отличается лаконичностью форм и использованием натуральных материалов. Стены дома выполнены из газобетона, что обеспечивает хорошую теплоизоляцию и долговечность конструкции. Скатная кровля добавляет дому современный вид и защищает от непогоды.
Дополнительные удобства
Одним из преимуществ этого проекта является наличие сауны, которая станет отличным местом для отдыха и релаксации после напряжённого дня. Отсутствие цокольного этажа и гаража позволяет оптимизировать пространство под другие нужды, например, обустроить дополнительную зону отдыха или мастерскую.
Преимущества проекта F-6074
Проект дома с мансардой 12 на 14 предлагает множество преимуществ: просторную планировку, европейский стиль, комфорт и дополнительные удобства в виде сауны. Этот проект станет отличным выбором для тех, кто ищет надёжное и практичное решение для своего дома.